

| 日南市南郷町榎原字亀川甲500番3 |
![]() |
![]() |
![]() |
| *写真、間取り図の画像をクリックして拡大表示 |
| 880 万円 (消費税込み) |
| 間取り | 6DK | 物件種別 | 戸建て | 築年月日 | 平成9年8月31日 |
| 土地面積 | 292.66u(88.5坪) | 建物面積 | 124.44u(37.6坪) | 建物構造 | 木造セメント瓦葺 |
| 建物階数 | 平家建 | 土地権利 | 所有権 | 地目 | 宅地 |
| 取引態様 | − | 現況 | − | 地勢 | 平坦 |
| 引渡時期 | − | 引渡条件 | − | 接道状況 | 幅員15.3〜18m両側歩道付舗装国道へ河川上に幅約5mの橋を介して接道 |
| 契約条件 | − | セットバック | − | 都市計画 | 都市計画区域外 |
| 用途地域 | − | 情報更新日 | 次回更新予定日 | ||
| 仲介手数料 | − | 建蔽率 | − | 容積率 | − |
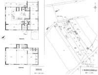
| 都城市高崎町縄瀬字越3189-7 |
![]() |
![]() |
![]() |
| *写真、間取り図の画像をクリックして拡大表示 |
| 1380 万円 (消費税込み) |
| 間取り | 5LDK | 物件種別 | 戸建て | 築年月日 | 平成8年3月12日 平成12年11月23日増築 |
| 土地面積 | 498.50u(150.7坪) | 建物面積 | 163.29u(49.3坪) | 建物構造 | 軽量鉄骨造 |
| 建物階数 | 2階建 | 土地権利 | 小野田地建 | 地目 | 宅地 |
| 取引態様 | 売主 | 現況 | − | 地勢 | 平坦 |
| 引渡時期 | 決済後 | 引渡条件 | 相談 | 接道状況 | 南側幅員約7.2m舗装市道 縄瀬原・迫之谷線 |
| 契約条件 | − | セットバック | 無し | 都市計画 | 都市計画区域外 |
| 用途地域 | − | 情報更新日 | 次回更新予定日 | ||
| 仲介手数料 | − | 建蔽率 | − | 容積率 | − |
| 小林市堤字八幡原133番11 |
![]() |
![]() |
![]() |
| *写真、間取り図の画像をクリックして拡大表示 |
| 1180 万円 (消費税込み) |
| 間取り | 6DK | 物件種別 | 戸建て | 築年月日 | 昭和43年12月18日 昭和54年4月1日増築 平成24年8月内装等リホーム 令和7年11月リホーム |
| 土地面積 | 334.87u(101.29坪) | 建物面積 | 1階68.59u 2階34.58u(31.2坪) |
建物構造 | 木・鉄骨造セメント瓦葺 |
| 建物階数 | 2階建 | 土地権利 | 小野田地建 | 地目 | 宅地 |
| 取引態様 | 売主 | 現況 | − | 地勢 | 概ね整形地 |
| 引渡時期 | − | 引渡条件 | − | 接道状況 | 南西側有効幅員約4.4m舗装市道 永田平川無線 |
| 契約条件 | − | セットバック | − | 都市計画 | 非線形都市計画区域 |
| 用途地域 | 無指定 | 情報更新日 | 次回更新予定日 | ||
| 仲介手数料 | 不要 | 建蔽率 | 70% | 容積率 | 200% |
| 都城市高崎町江平字木下1717-9、10、1726 |
![]() |
![]() |
| *写真、間取り図の画像をクリックして拡大表示 |
| 1180 万円 (消費税込み) |
| 間取り | 6DK | 物件種別 | 戸建て | 築年月日 | 平成8年11月1日 |
| 土地面積 | 771.03u(233.2坪) (内訳 1717-9:122.11u 1717-10:90.92u 1726:558.00u) |
建物面積 | 1階141.16u 2階25.53u(50.4坪) |
建物構造 | 木造瓦葺 |
| 建物階数 | 2階建 | 土地権利 | 所有権 | 地目 | 宅地 |
| 取引態様 | 売主 | 現況 | − | 私道負担面積 | − |
| 引渡時期 | − | 引渡条件 | − | 接道状況 | 西側有効幅員5〜6m 舗装市道 木下大丸線 |
| 契約条件 | − | セットバック | − | 都市計画 | 都市計画区域外 |
| 用途地域 | − | 情報更新日 | 次回更新予定日 | ||
| 仲介手数料 | 不要 |
| 小林市細野字湾津4642番6、11、4646番6 |
![]() |
![]() |
| *写真、間取り図の画像をクリックして拡大表示 |
| 1180 万円 (消費税込み) |
| 間取り | 3LDK | 物件種別 | 戸建て | 築年月日 | 平成5年4月18日 |
| 土地面積 | 355.12u(107.4坪) (内訳 4642-6:189.08u 4642-11:32.04u 4646-6:134u(持ち分調査中)) |
建物面積 | 81.71u(24.7坪) | 建物構造 | 木造セメント瓦葺 |
| 建物階数 | 平屋建 | 土地権利 | − | 地目 | 宅地 |
| 取引態様 | 売主 | 現況 | − | 私道負担面積 | − |
| 引渡時期 | − | 引渡条件 | − | 接道状況 | 南東側約5.8m舗装市道金鳥居2号線 |
| 契約条件 | − | セットバック | − | 都市計画 | 非線引都市計画区域 |
| 用途地域 | − | 情報更新日 | 次回更新予定日 | ||
| 仲介手数料 | 不要 |
| 宮崎市高岡町下倉永字荒瀬153-1、156-1、157-1 |
![]() |
![]() |
| *写真、間取り図の画像をクリックして拡大表示 |
| 1380 万円 (消費税込み) |
| 間取り | − | 物件種別 | 飲食店舗 | 築年月日 | 昭和57年10月 |
| 土地面積 | 756.44u(228.8坪) (内訳 153-1:207.00u 156-1:104.00u 157-1:445.44u) |
建物面積 | 1階100.33u 2階72.4u(52.3坪) |
建物構造 | 木造瓦葺 |
| 建物階数 | 2階建 | 土地権利 | 所有権 | 地目 | 宅地 |
| 取引態様 | 売主 | 現況 | 空き家 | 私道負担面積 | − |
| 引渡時期 | − | 引渡条件 | − | 接道状況 | 国道10号線 幅員約26m |
| 契約条件 | 購入要件有りますので、まずは担当までご連絡願います。090-9392-5595 | セットバック | 157-1 | 都市計画 | 市街化調整区域 |
| 用途地域 | − | 情報更新日 | 次回更新予定日 | ||
| 仲介手数料 | 不要 |
| 都城市広原町5号1番9 |
![]() |
![]() |
| *写真、間取り図の画像をクリックして拡大表示 |
| 980 万円 (消費税込み) |
| 間取り | 5DK | 物件種別 | 戸建て | 築年月日 | 昭和55年9月22日 |
| 土地面積 | 180.72u(54.66坪) | 建物面積 | 100.89u(30.52坪) | 建物構造 | 木造セメント瓦葺 |
| 建物階数 | 2階建 | 土地権利 | 所有権 | 地目 | 宅地 |
| 取引態様 | 売主 | 現況 | 空き家 | 私道負担面積 | − |
| 引渡時期 | 相談 | 引渡条件 | 相談 | 接道状況 | − |
| 契約条件 | − | セットバック | − | 都市計画 | − |
| 用途地域 | − | 情報更新日 | 次回更新予定日 | ||
| 仲介手数料 | 不要 |
| 延岡市下三輪町901-1、他 |
![]() |
![]() |
![]() |
| *写真、間取り図の画像をクリックして拡大表示 |
| 1280 万円 (消費税込み) |
| 間取り | 4LDK | 物件種別 | 戸建て | 築年月日 | 平成6年8月11日 |
| 土地面積 | 916u(277坪) | 建物面積 | 1階82.12u 2階51.44u(40.4坪) | 建物構造 | − |
| 建物階数 | 2階建 | 土地権利 | 所有権 | 地目 | 宅地 |
| 取引態様 | 売主 | 現況 | 空き家 | 私道負担面積 | − |
| 引渡時期 | 相談 | 引渡条件 | 相談 | 接道状況 | − |
| 契約条件 | − | セットバック | − | 都市計画 | − |
| 用途地域 | − | 情報更新日 | 次回更新予定日 | ||
| 仲介手数料 | 不要 |
| 延岡市下三輪町821、822番地 |